「ブライズ西大井DUE」は、東京都品川区西大井6丁目に建つ、2023年8月竣工のデザイナーズ賃貸マンションです。鉄筋コンクリート造・地上6階建の構造で、全49戸の住戸が用意されています。都営浅草線「中延駅」から徒歩6分、東急大井町線「荏原町駅」徒歩9分、JR横須賀線「西大井駅」徒歩11分と、複数路線が利用可能な交通利便性の高い立地にあり、品川や五反田方面へのアクセスも良好です。外観はモノトーンを基調としたスタイリッシュなデザインで、都市型の洗練された雰囲気を演出しています。住戸は主に1Kタイプで、専有面積は約25㎡前後。室内には2口ガスコンロ付きのシステムキッチン、独立洗面台、浴室乾燥機、温水洗浄便座、エアコン、ウォールキャビネットなどが備えられており、快適な一人暮らしを支える設備が充実しています。TVモニター付きインターホンやオートロック、防犯カメラなどのセキュリティ設備も整っており、安心して暮らせる環境が整っています。さらに、ペットの飼育も可能で、体長50cm以下・体重10kg以下の小型犬または猫1匹まで対応しています(ペット飼育時は共益費が月額3,500円加算)。共用部には宅配ボックス、エレベーター、敷地内ゴミ置場、駐輪場などが完備されており、日常の利便性にも配慮されています。周辺にはスーパーやコンビニ、ドラッグストア、飲食店などの生活施設が充実しており、静かな住宅街にありながら都市の利便性を享受できる住環境です。「ブライズ西大井DUE」は、デザイン性・機能性・安全性を兼ね備えた、シングルライフに最適な築浅レジデンスとして注目されています。
「ブライズ西大井DUE」について
「ブライズ西大井DUE」の物件概要

| 所在地 | 東京都品川区西大井6丁目 |
|---|---|
| 最寄駅 | JR横須賀線/西大井駅 徒歩11分 都営浅草線/中延駅 徒歩6分 |
| 築年数 | 2023年08月 |
| 間取り | 1K |
| 構造 | 鉄筋コンクリート造 |
「ブライズ西大井DUE」の室内詳細
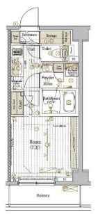
間取り

水道(公営) / ガス(都市) / 排水(下水) / バス専用共同(専用) / トイレ専用共同(専用) / バス・トイレ別 / シャワー / コンロ種別(ガス) / コンロ口数(二口) / システムキッチン / 給湯 / 追い焚き / エアコン / 室内洗濯機置き場 / CATV / オートロック / エレベータ / フローリング / 宅配ボックス / 駐輪場 / バイク置き場 / タイル貼り / internet対応(その他インターネット) / TVドアホン / 温水洗浄便座 / 浴室乾燥機 / ごみ出し24時間OK / 独立洗面台 / 防犯カメラ / インターネット利用料無料 / カード決済(初期費用) / クローゼット / シューズボックス / ペット相談 / 保証人不要 / 敷地内ゴミ置き場
※設備をクリック頂くと設備で条件を絞ることが可能です
1K/洋室

白基調の内装でスタイリッシュです。7.3帖の広めの洋室、柱の出にくい構造で、すっきりとした居住空間が広がり、家具の配置もしやすい間取りです。
システムキッチン

2口ガスコンロのシンプルなシステムキッチンです。シンク・コンロ・調理台・収納が一体化されており、見た目もすっきりしていて、掃除のしやすさにも優れています。吊戸棚、シンク下の棚など、調理家電などを収納するのに便利です。
バスルーム

1Kタイプの賃貸住宅では、浴室はコンパクトなユニットバスが主流ですが、湯船にゆったり浸かることで、心身ともにリラックスできる時間を過ごすことが可能です。浴室乾燥機が付いている物件では、湿気を素早く除去できるため、カビの発生を防ぎつつ、洗濯物の室内干しにも活用できます。
独立洗面台

独立洗面台は、快適で機能的な住環境を求める現代のライフスタイルにおいて、非常に重宝される設備のひとつです。洗面台が浴室やトイレと分離されていることで、日常の身支度や衛生管理が格段にしやすくなります。鏡を見ながら朝の身支度やスキンケアなどが快適におこなえ、洗面台下は収納スペースになっており備品や清掃道具などの収納に便利です。
トイレ

個室トイレは、プライバシーと快適性を重視した住環境において、非常に重要な設備のひとつです。浴室や洗面台と空間を分離することで生活動線がスムーズです。また温水洗浄便座の機能がついているため、いつでも快適に清潔に保つことができます。
セキュリティ

オートロック付きのエントランスです。住人以外の人物が建物内に容易に立ち入れないようにすることで、防犯性と安心感を高める役割を果たします。
「ブライズ西大井DUE」のおすすめポイント
お部屋探しでお困りの方へ
リブリッチ大井町店は、賃貸マンション・賃貸アパート・売買物件・不動産全般の ご紹介をおこなっております。 地域密着で地元の不動産情報を豊富に取り揃え、日々最新の情報を発信しております。 また、弊社では設備が充実した分譲賃貸マンションやデザイナーズマンションなどを 中心に自社専任募集の物件を多数ご紹介しております。 物件情報はもちろん街の情報やグルメ、小学校区などの教育関係の知識に精通した 専門スタッフがご案内をさせていただきます。お気軽にお問い合わせください。