アズ大井町レジデンスは、築浅でデザイン性と利便性を兼ね備えた高級賃貸マンションで、シングルから少人数ファミリーまで幅広く対応できる住まいです。
品川区二葉一丁目に位置するこのマンションは、2022年5月竣工の鉄筋コンクリート造、地上5階地下1階建てで総戸数は19戸とコンパクトながら、洗練された外観と充実した設備を備えています。最寄り駅は東急大井町線の下神明駅で徒歩わずか1分、さらにJR京浜東北線や東急大井町線が利用できる大井町駅も徒歩9分と、都心へのアクセスが非常に良好です。西大井駅や戸越公園駅も徒歩圏内にあり、通勤や通学に便利な立地が魅力です。
間取りはワンルームから2LDKまで幅広く用意されており、シングル層だけでなくディンクスや少人数のファミリーにも適しています。礼金が不要な住戸やフリーレント付きのプランもあり、初期費用を抑えたい方にとっても検討しやすい条件です。
設備面では、オートロック、防犯カメラ、TVモニター付きインターホンといったセキュリティ機能が整い、安心して暮らせる環境が提供されています。室内にはシステムキッチン、追焚機能付きバス、浴室乾燥機、温水洗浄便座、独立洗面台などが備わり、快適な生活を支える仕様となっています。さらにインターネットが無料で利用できるため、ランニングコストを抑えつつ快適なネット環境を享受できます。共用部には宅配ボックスやエレベーターも設置されており、不在時の荷物受け取りや日常の移動もスムーズです。
周辺環境としては、コンビニやスーパーが徒歩圏内に揃い、日常の買い物に困ることはありません。大井町駅周辺には阪急大井町ガーデンやヤマダ電機LABI品川大井町といった大型商業施設もあり、ショッピングや外食の選択肢が豊富です。教育施設や医療機関も近隣に整っているため、生活の安心感も高いエリアです。総じて、アズ大井町レジデンスは駅近の利便性、築浅ならではの快適な設備、そしてセキュリティ面の安心感を兼ね備えた物件であり、都市生活をスタイリッシュかつ快適に楽しみたい方にふさわしい住まいといえるでしょう。
「アズ大井町レジデンス」について
「アズ大井町レジデンス」の物件概要

| 所在地 | 東京都品川区二葉1丁目 |
|---|---|
| 最寄駅 | 東急大井町線/下神明駅 徒歩1分 JR京浜東北・根岸線/大井町駅 徒歩10分 |
| 築年数 | 2022年5月 |
| 間取り | 1R |
| 構造 | 鉄筋コンクリート造 |
「アズ大井町レジデンス」の室内詳細
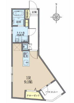
間取り

水道(公営) / ガス(都市) / 排水(下水) / バス専用共同(専用) / トイレ専用共同(専用) / バス・トイレ別 / シャワー / コンロ種別(ガス) / コンロ口数(二口) / システムキッチン / 給湯 / 追い焚き / 洗髪洗面化粧台 / エアコン / 室内洗濯機置き場 / オートロック / エレベータ / バルコニー / フローリング / タイル貼り / internet対応(その他インターネット) / 角部屋 / TVドアホン / 温水洗浄便座 / 浴室乾燥機 / ごみ出し24時間OK / 独立洗面台 / 防犯カメラ / インターネット利用料無料 / カード決済(初期費用) / 全居室収納 / クローゼット / 照明器具付き / オートバス / 保証人不要
※設備をクリック頂くと設備で条件を絞ることが可能です
1R/洋室

9.1帖の洋室です。2面採光で明るく風通しのよい環境です。
システムキッチン

二口コンロのキッチンです。シンク下には大容量の収納スペースがあり、調理器具がすっきりと収納できます。調理スペースが広いのでお料理がスムーズに行えます。
バスルーム

トイレと浴室が別々の空間に分かれているため、湿気や臭いの問題も軽減されます。また、シャワーだけでなく湯船に浸かることもでき、リラックスした時間を過ごせるのも魅力です。浴室乾燥機があるので雨の日のお洗濯も快適です。
独立洗面台

大きな鏡のある洗面台で毎日の身支度に便利です。収納も豊富で備品や清掃用具の保管に困りません。
トイレ

温水洗浄便座付きで毎日に清潔に保つことができます。上部には吊戸棚がありトイレ備品の収納に便利です。
セキュリティ

オートロック付きエントランスは、住民の安全性とプライバシーを高めるための重要な設備です。ドアは常に施錠されており、不審者やセールスの侵入を防ぎやすく、安心感のある住環境が実現します。来訪者の顔を確認してから解錠できるため、防犯意識の高い人にとっては大きな安心材料となります。
「アズ大井町レジデンス」のおすすめポイント
お部屋探しでお困りの方へ
リブリッチ大井町店は、賃貸マンション・賃貸アパート・売買物件・不動産全般の ご紹介をおこなっております。 地域密着で地元の不動産情報を豊富に取り揃え、日々最新の情報を発信しております。 また、弊社では設備が充実した分譲賃貸マンションやデザイナーズマンションなどを 中心に自社専任募集の物件を多数ご紹介しております。 物件情報はもちろん街の情報やグルメ、小学校区などの教育関係の知識に精通した 専門スタッフがご案内をさせていただきます。お気軽にお問い合わせください。