SYNEX NISHI-OI(シーネクス西大井)は、2024年に誕生したばかりの洗練されたデザイナーズマンションです。 JR横須賀線「西大井」駅より徒歩6分という利便性の高い立地にあり、都心へのアクセスもスムーズで、日々の通勤やお出かけを快適にサポートいたします。お部屋は1Rから1DKまで多様なタイプをご用意しており、単身の方を中心に幅広いライフスタイルに寄り添う設計となっております。 室内には、独立洗面台・浴室乾燥機・2口コンロなど人気の設備を備え、インターネット無料サービスもご利用いただけます。 また、オートロック・宅配ボックス・防犯カメラなど、安心してお住まいいただけるセキュリティ体制も整っております。さらに、ペット飼育のご相談も可能なため、大切なご家族と一緒に新生活を始めたい方にもおすすめです。 周辺にはスーパーやコンビニ、飲食店が揃い、生活利便性の高さも魅力のひとつです。落ち着いた住環境の中で、快適さと便利さを兼ね備えた暮らしを実現していただけます。
「SYNEX NISHI-OI」について
「SYNEX NISHI-OI」の物件概要

| 所在地 | 東京都品川区西大井2丁目 |
|---|---|
| 最寄駅 | JR横須賀線/西大井駅 徒歩6分 京浜東北線/大井町駅 徒歩20分 |
| 築年数 | 2024年2月 |
| 間取り | 1R |
| 構造 | 鉄筋コンクリート造 |
「SYNEX NISHI-OI」の室内詳細
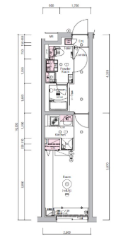
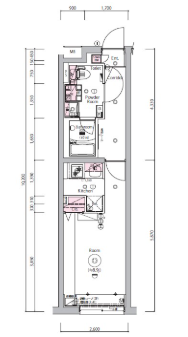
間取り

水道(公営) / ガス(都市) / 排水(下水) / バス専用共同(専用) / トイレ専用共同(専用) / バス・トイレ別 / コンロ種別(ガス) / コンロ口数(二口) / システムキッチン / エアコン / 室内洗濯機置き場 / オートロック / フローリング / 宅配ボックス / internet対応(その他インターネット) / 温水洗浄便座 / デザイナーズ / 浴室乾燥機 / 独立洗面台 / インターネット利用料無料 / クローゼット / シューズボックス / ペット対応 / 保証人不要
※設備をクリック頂くと設備で条件を絞ることが可能です
1K/洋室

8.9帖のお部屋は、単身者向けの賃貸としてはゆとりのある広さで、生活スペースに余裕を持って暮らせるのが大きな魅力です。ベッドやソファ、テレビボード、ワークデスクなどを無理なく配置でき、家具のレイアウト次第で「くつろぐ空間」と「作業する空間」をしっかり分けられるため、生活にメリハリが生まれます。一般的な6帖や7帖のお部屋と比べると、動線にゆとりがあり、圧迫感のない開放的な住み心地を感じられる点も特徴です。
システムキッチン

コンロは2口タイプで、同時調理がしやすく、自炊をされる方にもとても便利です。作業スペースも確保されているため、ひとり暮らしでも料理を楽しみたい方に向いています。築浅ならではの清潔感があり、毎日の料理が快適に感じられるキッチンです。
バスルーム

浴室乾燥機付きのバスルームは、日々の暮らしをぐっと快適にしてくれる人気設備です。雨の日や湿気の多い季節でも、洗濯物をしっかり乾かせるため、天候に左右されずに家事が進められる安心感があります。外干しが難しい方や、帰宅が遅くなる生活リズムの方にとっては、夜でも気兼ねなく洗濯できる心強い味方です。
独立洗面台

独立洗面台は毎日の身支度を快適にしてくれる人気の設備です。収納スペースが備わっているため、化粧品やスキンケア用品、歯ブラシなどの細かなアイテムをすっきりしまうことができ、洗面台まわりが散らかりにくくなります。独立した洗面スペースがあることで、朝の準備や帰宅後の手洗いがスムーズになり、生活動線も整います。
トイレ

便座が温かく保たれるため、冬場のひんやりとした不快感がなく、朝の支度の時間が少しだけ心地よくなります。温水でやさしく洗浄できるため、肌への負担も軽減されます。毎日必ず使う場所だからこそ、こうした細やかな快適性が暮らし全体の満足度につながります。
オートロック

オートロック付きのマンションは、日々の暮らしに安心感をもたらしてくれる人気の設備です。エントランスで来訪者を確認してから解錠する仕組みのため、不審な人物が建物内に入りにくく、特に一人暮らしの方や帰宅時間が不規則な方にとって大きな安心材料になります。建物全体のセキュリティが高まることで、住んでいる方同士の安心感も自然と生まれ、落ち着いた住環境が保たれやすい点も魅力です。
「SYNEX NISHI-OI」のおすすめポイント
お部屋探しでお困りの方へ
リブリッチ大井町店は、賃貸マンション・賃貸アパート・売買物件・不動産全般の ご紹介をおこなっております。 地域密着で地元の不動産情報を豊富に取り揃え、日々最新の情報を発信しております。 また、弊社では設備が充実した分譲賃貸マンションやデザイナーズマンションなどを 中心に自社専任募集の物件を多数ご紹介しております。 物件情報はもちろん街の情報やグルメ、小学校区などの教育関係の知識に精通した 専門スタッフがご案内をさせていただきます。お気軽にお問い合わせください。
