スカイコートプライム大井町は、品川区大井に位置する2021年築の分譲賃貸マンションで、鉄筋コンクリート造の地上11階建、総戸数は約34戸というコンパクトな規模ながら、都市生活に必要な機能をしっかり備えています。最寄り駅はJR京浜東北線・りんかい線・東急大井町線が乗り入れる大井町駅で、徒歩11分の距離にあり、さらに京急本線の立会川駅も徒歩圏内にあるため、都心や横浜方面へのアクセスが非常に良好です。外観はダークトーンを基調としたスタイリッシュなデザインで、築浅ならではの清潔感と現代的な雰囲気を漂わせています。
住戸はワンルームから1LDKまでの間取りが中心で、専有面積は約21㎡から40㎡ほどとなっており、シングルやカップルに適した構成です。室内には浴室乾燥機や温水洗浄便座、独立洗面台、システムキッチンなど快適な暮らしを支える設備が整い、無料インターネットサービスも導入されているため、テレワークや日常のネット利用にも便利です。建物には宅配ボックスや敷地内ゴミ置き場が設置され、駐輪場やバイク置き場も用意されているため、ライフスタイルに合わせた利用が可能です。
周辺環境も充実しており、大井町駅周辺にはスーパーや商店街、駅ビル、飲食店が揃い、日常の買い物や外食に困ることはありません。さらに大型商業施設や映画館、公園なども徒歩圏内にあり、休日の過ごし方にも幅が広がります。総じて、スカイコートプライム大井町は交通アクセスの良さ、生活利便性、築浅ならではの快適性を兼ね備えたマンションであり、都市生活を便利に楽しみたい人にふさわしい住まいといえます。
「スカイコートプライム大井町」について

「スカイコートプライム大井町」の物件概要
| 所在地 | 東京都品川区大井5丁目 |
|---|---|
| 最寄駅 | JR京浜東北・根岸線/大井町駅 徒歩11分 京急本線/立会川駅 徒歩12分 |
| 築年数 | 2021年9月 |
| 間取り | 1K |
| 構造 | 鉄筋コンクリート造 |
「スカイコートプライム大井町」の室内詳細
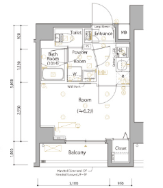
間取り

水道(公営) / ガス(都市) / 排水(下水) / バス専用共同(専用) / トイレ専用共同(専用) / バス・トイレ別 / シャワー / コンロ種別(ガス) / コンロ口数(二口) / システムキッチン / 給湯 / エアコン / 室内洗濯機置き場 / オートロック / エレベータ / フローリング / 宅配ボックス / 駐輪場 / バイク置き場 / タイル貼り / internet対応(光ファイバー) / TVドアホン / 温水洗浄便座 / 浴室乾燥機 / ごみ出し24時間OK / 独立洗面台 / 防犯カメラ / インターネット利用料無料 / カード決済(初期費用) / クローゼット / シューズボックス / 保証人不要 / 分譲賃貸 / 敷地内ゴミ置き場
※設備をクリック頂くと設備で条件を絞ることが可能です
1K/洋室

南向き6.2帖の洋室で、柱の張り出しが少なく壁がフラットでスッキリとした印象です。ベッドやソファ、収納棚などを壁にぴったりと設置でき、デッドスペースが生まれにくく空間を効率的に使えます。
システムキッチン

2口コンロのシンプルなシステムキッチンです。シンク・コンロ・調理台・収納が一体化されており、見た目もすっきりしていて、掃除のしやすさにも優れています。
バスルーム

浴室乾燥機付きのバスルームです。トイレと浴室が別々の空間に分かれているため、湿気や臭いの問題も軽減されます。また、シャワーだけでなく湯船に浸かることもでき、リラックスした時間を過ごせるのも魅力です。
独立洗面台

洗顔・歯磨き・メイク・ヘアセットなど、日常の身支度を落ち着いて行える環境が整っています。洗面台の周辺には収納スペースが設けられていることが多く、歯ブラシや化粧品などをすっきりと整理できるため、生活感を抑えた清潔な印象のインテリアにもつながります。
トイレ

温水洗浄便座の機能がついているため、いつでも快適に清潔に保つことができます。
エントランス

オートロック付きエントランスは、住民の安全性とプライバシーを高めるための重要な設備です。ドアは常に施錠されており、不審者やセールスの侵入を防ぎやすく、安心感のある住環境が実現します。来訪者の顔を確認してから解錠できるため大きな安心材料となります。
「スカイコートプライム大井町」のおすすめポイント
お部屋探しでお困りの方へ
リブリッチ大井町店は、賃貸マンション・賃貸アパート・売買物件・不動産全般の ご紹介をおこなっております。 地域密着で地元の不動産情報を豊富に取り揃え、日々最新の情報を発信しております。 また、弊社では設備が充実した分譲賃貸マンションやデザイナーズマンションなどを 中心に自社専任募集の物件を多数ご紹介しております。 物件情報はもちろん街の情報やグルメ、小学校区などの教育関係の知識に精通した 専門スタッフがご案内をさせていただきます。お気軽にお問い合わせください。

