プレミアムキューブ大井町#moは、品川区南品川に建つデザイナーズマンションで、洗練された外観と快適な設備を備えた築浅物件です。
このマンションは2019年築、鉄筋コンクリート造の7階建で、総戸数53戸を有しています。最寄り駅は京急本線の新馬場駅(徒歩8分)、JR京浜東北線・りんかい線・東急大井町線の大井町駅(徒歩9分)と複数路線が利用可能で、都心や品川、羽田方面へのアクセスが非常に良好です。
外観はモノトーンでまとめられたモダンなデザインで、夜間にはライトアップされることで都会的な雰囲気を演出します。室内は1Rから1LDKまでの間取りが用意されており、シングルやディンクス層に適した広さです。専有面積は約20㎡から41㎡とコンパクトながら効率的なレイアウトで、ガスシステムキッチン、浴室乾燥機、温水洗浄便座、独立洗面台など人気の設備が整っています。さらにインターネットが無料で利用できる点も日常生活を支える大きなメリットです。
ペットの飼育が2匹まで相談可能で、動物と暮らしたい方にも柔軟に対応しています。共用部にはオートロック、防犯カメラ、宅配ボックスが備わり、セキュリティと利便性を両立。周辺は閑静な住宅街でありながら、大井町駅周辺にはアトレやイトーヨーカドー、阪急大井町ガーデンなど大型商業施設が揃い、生活利便性も高い環境です。
この物件は、ファッションモデルでタレントの押切もえさんがプロデュースする「#moシリーズ」の一つで、女性目線のデザイン性や快適性が強く意識されている点も特徴的です。
「プレミアムキューブ大井町#mo」について
「プレミアムキューブ大井町#mo」の物件概要

| 所在地 | 東京都品川区南品川6丁目 |
|---|---|
| 最寄駅 | JR京浜東北・根岸線/大井町駅 徒歩9分 京急本線/新馬場駅 徒歩8分 |
| 築年数 | 2019年2月 |
| 間取り | 1K |
| 構造 | 鉄筋コンクリート造 |
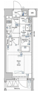
「プレミアムキューブ大井町#mo」の室内詳細
間取り

水道(公営) / ガス(都市) / 排水(下水) / バス専用共同(専用) / トイレ専用共同(専用) / バス・トイレ別 / シャワー / コンロ種別(ガス) / コンロ口数(二口) / システムキッチン / 給湯 / エアコン / 室内洗濯機置き場 / オートロック / エレベータ / バルコニー / フローリング / 宅配ボックス / タイル貼り / internet対応(その他インターネット) / TVドアホン / 温水洗浄便座 / 浴室乾燥機 / ごみ出し24時間OK / 独立洗面台 / 防犯カメラ / インターネット利用料無料 / カード決済(初期費用) / 全居室収納 / クローゼット / シューズボックス / ペット相談 / 保証人不要 / 敷地内ゴミ置き場
※設備をクリック頂くと設備で条件を絞ることが可能です
1K/洋室

東向き6.0帖の洋室です。1Kの洋室タイプは、シングル向け賃貸物件で最も一般的な間取りのひとつです。最大の特徴は「生活空間と寝室が一体化しているシンプルさ」にあります。玄関を入るとすぐにキッチンがあり、その奥に洋室が広がる構成が多く、料理や食事、くつろぎ、就寝といった日常の動作を一つの部屋で完結できるのがポイントです。
システムキッチン

2口ガスコンロのシステムキッチンです。シンク・コンロ・調理台・収納が一体化されており、見た目もすっきりしていて、掃除のしやすさにも優れています。コンパクトながら調理スペースも確保されています。
バスルーム

浴室乾燥機付きユニットバスは、コンパクトな空間に多機能を備えた設備であり、日常生活の快適さを大きく高めてくれる特徴があります。浴室乾燥機があることで洗濯物を室内で干せるため、雨の日や花粉・黄砂の季節でも安心して衣類を乾かすことができます。外干しが難しい都市部のマンションでは特に重宝され、生活の自由度を広げてくれる設備です。
独立洗面台

大きな鏡のある独立洗面台です。鏡の裏、洗面台の下に収納スペースがあるので、洗面小物や掃除道具などスッキリと収納できます。
トイレ

温水洗浄便座の機能付きのトイレで、いつでも快適に清潔に保つことができます。独立トイレは浴室や洗面所と分かれているため、同時利用が可能で生活の動線がスムーズになります。来客時にもプライバシーが守られ、清潔感を保ちやすい点が大きなメリットです。
オートロック

オートロック付きエントランスは、マンションの防犯性と安心感を高めるために設けられた仕組みです。エントランスのドアは常に自動で施錠されており、居住者は専用の鍵やカードキー、暗証番号、あるいは最近ではスマートフォンや生体認証を使って解錠します。来訪者はインターホンで居住者を呼び出し、許可を得てから解錠してもらう必要があるため、不審者や不要な訪問者の侵入を防ぐ効果があります。
「プレミアムキューブ大井町#mo」のおすすめポイント
お部屋探しでお困りの方へ
リブリッチ大井町店は、賃貸マンション・賃貸アパート・売買物件・不動産全般の ご紹介をおこなっております。 地域密着で地元の不動産情報を豊富に取り揃え、日々最新の情報を発信しております。 また、弊社では設備が充実した分譲賃貸マンションやデザイナーズマンションなどを 中心に自社専任募集の物件を多数ご紹介しております。 物件情報はもちろん街の情報やグルメ、小学校区などの教育関係の知識に精通した 専門スタッフがご案内をさせていただきます。お気軽にお問い合わせください。