エステムプラザ品川大井町クリスタルヒルズは、品川区大井四丁目に位置する分譲マンションで、2012年に竣工しました。鉄筋コンクリート造の地上15階建て、総戸数64戸という規模で、大井町駅から徒歩4分という非常に利便性の高い立地が最大の魅力です。大井町駅はJR京浜東北線、りんかい線、東急大井町線が乗り入れており、都心へのアクセスが良好で、通勤や通学に便利な環境が整っています。さらに、京急線の青物横丁駅や鮫洲駅も徒歩圏内にあり、複数路線を使い分けられる点も生活の幅を広げてくれます。
マンションの設備は分譲仕様らしく充実しており、床暖房や浴室乾燥機、温水洗浄便座、シャワー付き洗面台など快適な暮らしを支える機能が整っています。セキュリティ面ではオートロック、防犯カメラ、24時間セキュリティシステムが導入されており、単身者や女性でも安心して暮らせる環境です。宅配ボックスも備えられているため、不在時の荷物受け取りにも困りません。間取りは1Kから1SLDKが中心で、主に単身者やDINKS向けの住戸構成となっていますが、収納スペースが工夫されているため、コンパクトながらも快適に生活できるよう設計されています。
周辺環境も非常に恵まれており、駅直結のアトレ大井町やイトーヨーカドー、阪急大井町ガーデン、ヤマダ電機LABI品川大井町など大型商業施設が徒歩圏内に揃っています。日常の買い物はもちろん、飲食店や娯楽施設も豊富で、生活利便性は抜群です。さらに、まいばすけっとやコンビニ、ドラッグストアなども近隣に点在しており、日常生活に必要なものはほぼ徒歩圏で揃います。大井中央公園など緑豊かなスポットもあり、都市生活の中でリフレッシュできる環境も確保されています。
総じて、エステムプラザ品川大井町クリスタルヒルズは、都心アクセスの良さと生活利便性の高さを兼ね備えた都市型マンションであり、分譲仕様ならではの快適な設備と安心のセキュリティが魅力です。大井町というエリアの活気と利便性を享受しながら、落ち着いた住環境を求める方に適した物件といえるでしょう。
「エステムプラザ品川大井町クリスタルヒルズ」について
「エステムプラザ品川大井町クリスタルヒルズ」の物件概要

| 所在地 | 東京都品川区大井4丁目 |
|---|---|
| 最寄駅 | JR京浜東北・根岸線/大井町駅 徒歩4分 京急本線/立会川駅 徒歩12分 |
| 築年数 | 2013年1月 |
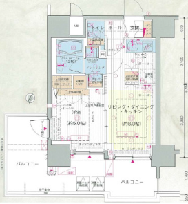
| 間取り | 1LDK |
| 構造 | 鉄筋コンクリート |
「LUMIERE南品川A」の室内詳細
間取り

水道(公営) / ガス(都市) / 排水(下水) / バス専用共同(専用) / トイレ専用共同(専用) / バス・トイレ別 / シャワー / コンロ種別(ガス) / コンロ口数(二口) / システムキッチン / 給湯 / 追い焚き / エアコン / 室内洗濯機置き場 / オートロック / エレベータ / バルコニー / フローリング / 宅配ボックス / internet対応(光ファイバー) / 床暖房 / TVドアホン / 温水洗浄便座 / 浴室乾燥機 / ごみ出し24時間OK / 独立洗面台 / 浴室TV / 防犯カメラ / カード決済(初期費用) / セキュリティ会社 / クローゼット / シューズボックス / 照明器具付き / オートバス / 二人入居可 / ペット相談 / 保証人不要
※設備をクリック頂くと設備で条件を絞ることが可能です
1LDK/LDK

南向きのリビングで日当たり良好です。床暖房が設置されていて足元からお部屋全体を温かく包み込みます。
システムキッチン

システムキッチンは、調理台・収納・コンロ・シンクなどが一体化して設計されているため、見た目が美しく、キッチン全体に統一感が生まれます。また、作業動線がスムーズになり、調理中の動きが少なくて済むため効率的に料理ができます。さらに、収納スペースが豊富に確保されているため、調理器具や食器をスッキリ整理でき、キッチン周りが散らかりにくくなります。
バスルーム

トイレと浴室が別々の空間に分かれているため、湿気や臭いの問題も軽減されます。また、シャワーだけでなく湯船に浸かることもでき、リラックスした時間を過ごせるのも魅力です。また浴室乾燥機があることで、梅雨や冬など外干しが難しい季節には浴室を室内干しスペースとして活用できるため、天候に左右されない洗濯環境が整います。
独立洗面台

洗顔・歯磨き・メイク・ヘアセットなど、日常の身支度を落ち着いて行える環境が整っています。洗面台の周辺には収納スペースが設けられていることが多く、歯ブラシや化粧品などをすっきりと整理できるため、生活感を抑えた清潔な印象のインテリアにもつながります。
トイレ

個室トイレで静かな環境です。温水洗浄便座付きで清潔に保つことができます。
セキュリティ

オートロック付きエントランスは、住民の安全性とプライバシーを高めるための重要な設備です。ドアは常に施錠されており、不審者やセールスの侵入を防ぎやすく、安心感のある住環境が実現します。来訪者の顔を確認してから解錠できるため、防犯意識の高い人にとっては大きな安心材料となります。
「エステムプラザ品川大井町クリスタルヒルズ」のおすすめポイント
お部屋探しでお困りの方へ
リブリッチ大井町店は、賃貸マンション・賃貸アパート・売買物件・不動産全般の ご紹介をおこなっております。 地域密着で地元の不動産情報を豊富に取り揃え、日々最新の情報を発信しております。 また、弊社では設備が充実した分譲賃貸マンションやデザイナーズマンションなどを 中心に自社専任募集の物件を多数ご紹介しております。 物件情報はもちろん街の情報やグルメ、小学校区などの教育関係の知識に精通した 専門スタッフがご案内をさせていただきます。お気軽にお問い合わせください。
